
用 途
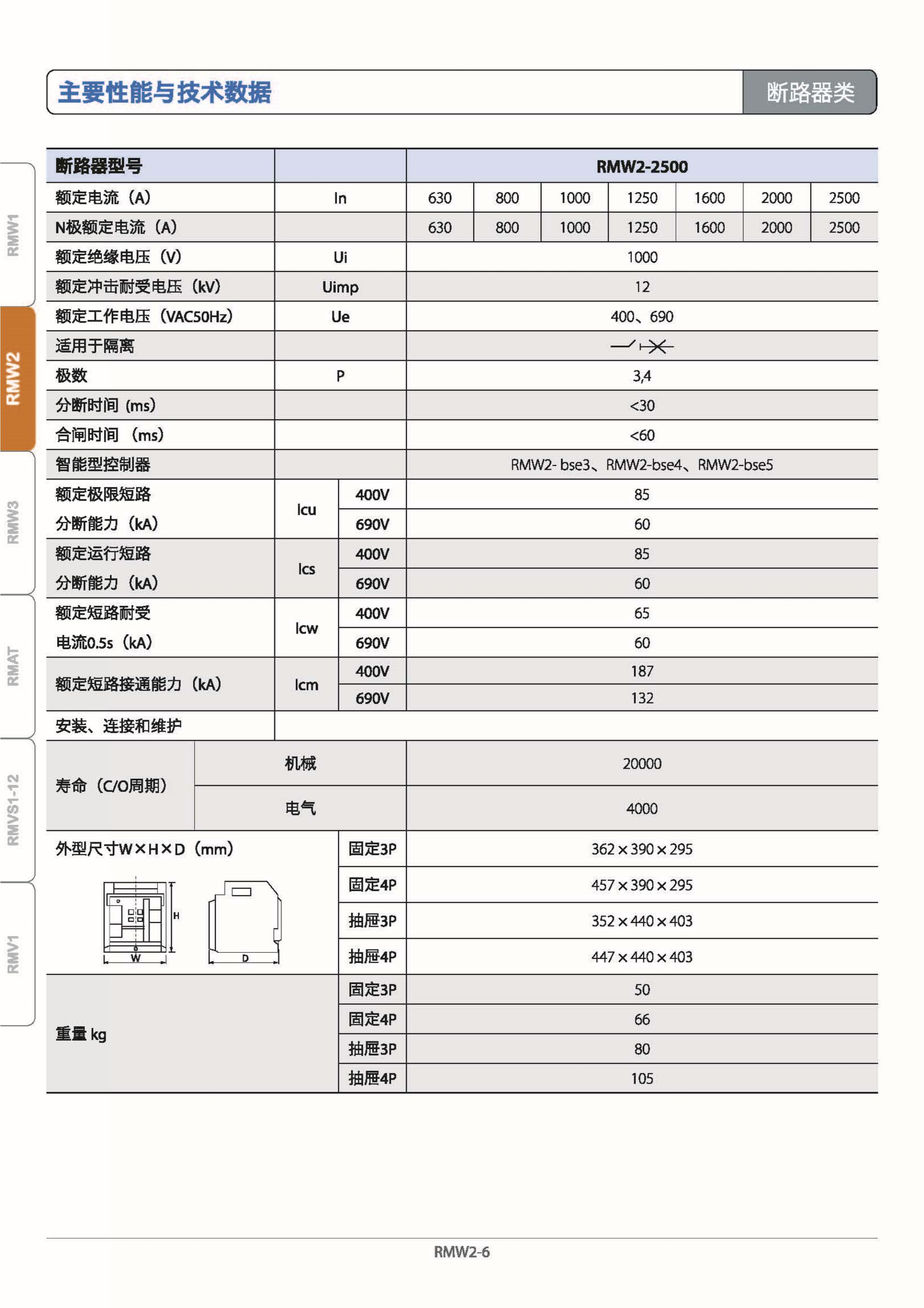
RMW2系列智能型万能式空气断路器是上海人民电器厂的新一代产品。该系列产品设计采用了新技术,进一步增强了产品的性能和安全性。RMW2系列智能型万能式空气断路器适用于额定电压为交流50Hz,400V、690V,额定电流200~6300A,用于分配电能和保护线路、电源及用电设备免受过载、欠电压、短路、漏电、接地等故障的危害;具有较高精度的选择性保护,提高了供电可靠性。额定电流为630A及以下断路器,可以用作在交流50Hz,400V网络中直接操作电动机,作为控制电动机的偶然启动、停止之用。
特 点
模块化结构、通用性强, 体积小;简便的安装方式, 实现与主回路的水平、
高分断能力; 垂直接线;
无飞弧距离,安全性高; 多种附件, 方便用户选择;
可靠安全的位置锁定及解锁装置; 智能化保护功能齐全、 可靠;
可上或下进线连接; 集成化通信方式, 适用于多种协议;
断路器型号含义

正常工作条件
环境温度: -5C ~+40C; 且其24小时的平均值不超过+35C。
极限大气条件: 最高温度为+40C时, 空气的相对湿度不超过50%, 在较低温度下可以有较高的相对湿度, 例如: 20C时达90%。 对由于温度变化偶尔产生的凝露应采取特殊的措施。
污染等级: 污染等级三级。
海拔高度: 安装地点的海拔不超过2000m。
电磁干扰: 电磁适应性试验( EMC) 。
RMW2-1600固定式智能型万能式空气断路器
RMW2-1600抽屉式智能型万能式空气断路器
RMW2-2500固定式智能型万能式空气断路器
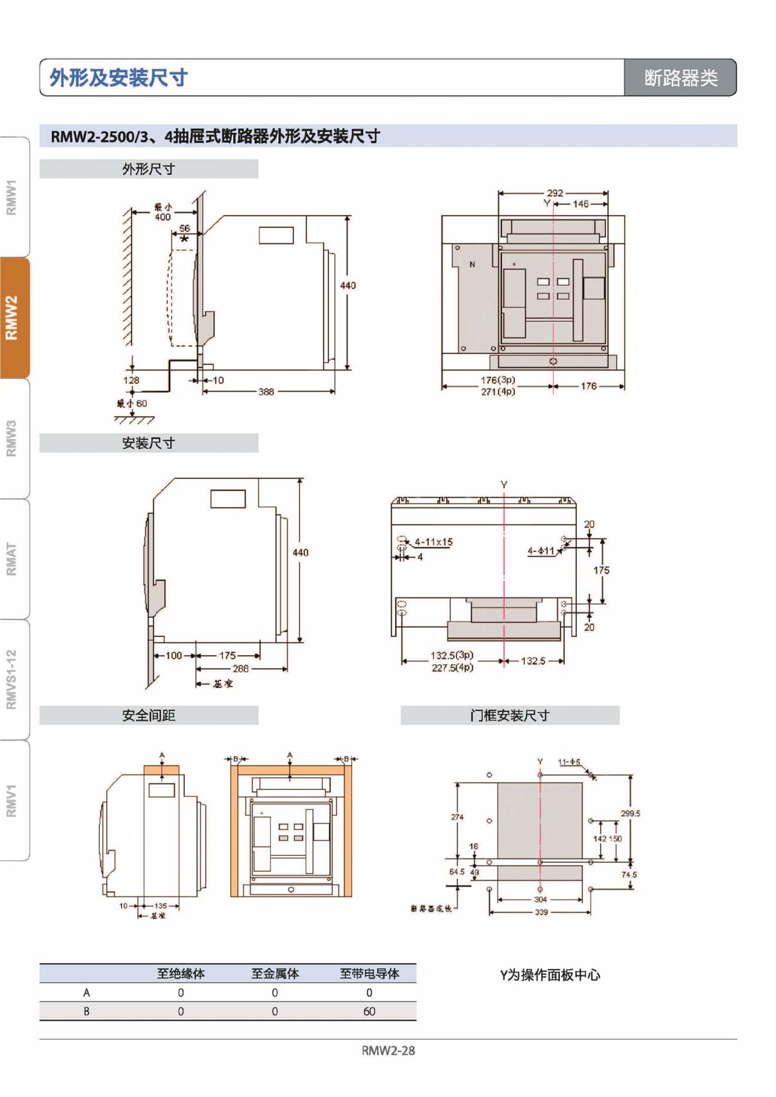
RMW2-2500抽屉式智能型万能式空气断路器
RMW2-4000固定式智能型万能式空气断路器
RMW2-4000抽屉式智能型万能式空气断路器
RMW2-6300固定式智能型万能式空气断路器
RMW2-6300抽屉式智能型万能式空气断路器

















