跳过内容
咨询电话:13818244503|sh@shanhehairong.com
阿里旺旺沟通阿里旺旺沟通QQ交流QQ交流微信公众号:shanhehairong微信公众号:shanhehairong上海山合海融微博上海山合海融微博微信号:sh51082245微信号:sh51082245手机浏览直接拨打电话手机浏览直接拨打电话
上海山合海融商贸有限公司 Logo 上海山合海融商贸有限公司 Logo 上海山合海融商贸有限公司 Logo
  • 首页
  • 美国进口产品
    • 美国凯能五金工具
      • 螺丝刀
      • 拉缆夹
      • 六角扳手
      • 电动工具
      • 钳类工具
      • 绝缘工具
      • 扳手类工具
      • 工具包和配件
      • 断线钳 电缆剪
      • 钣金 锤凿工具
      • 个人防护与安全
      • 导管 重工业工具
      • 水平仪与测量工具
      • 电信 连接 工具套件
    • 美国KUDOS工具
      • 液压泵
      • 液压钳
      • 液压钳头
      • 手动工具
      • 液压切刀
      • 液压切刀头
      • 钢管弯曲机
      • 液压冲孔机
      • 液压电动工具
      • 液压法兰扩张器
      • 液压螺母破碎机
      • 钢筋切断机 弯曲机
    • 美国salisbury安全工具
      • 救援钩棒
      • 绝缘毯及附件
      • 电绝缘鞋、靴
      • 防电弧面屏套件
      • 绝缘手套和护袖
      • 防电弧产品及套件
      • 电压探测器 验电器
      • 头面部电弧防护产品
      • 绝缘塑料套管和护罩
    • 美国hastings安全产品
      • 车载附件
      • 遮蔽罩 护罩
      • 操作杆及附件
      • 测试仪器仪表
      • 索具及起重设备
      • 护理和保养产品
      • 接地和跳线设备
      • 导体和人员支撑
      • 绝缘操作杆和切刀
    • 美国霍尼韦尔安全产品
      • 头部防护系列
      • 消防救援系列
      • 手部防护系列
      • 听力防护系列
      • 呼吸防护系列
      • 身体防护系列
      • 坠落防护系列
      • 足部防护系列
      • 眼脸部防护系列
    • 美国TSI测试仪器
      • Alnor仪器
      • Airflow仪器
      • 粒子计数器
      • 环境监测仪
      • 气溶胶类产品
      • 通风测试仪器
      • 分析仪类产品
      • 流量测量系统
    • 美国HDE仪器仪表
      • 测试仪
      • 数显电压表
      • 无线核相仪
      • 非接触式验电器
      • 多功能数显电压表
      • 避雷器泄露电流测试仪
    • 美国vanguard仪器
      • 断路器测试仪
      • 变压器测试仪
      • 其他测试仪及附件
      • 电流互感器测试仪
      • 多功能继电保护测试仪
    • 美国高压电力仪器
      • 直流耐压系列
      • 其它高压测试设备
      • VLF低频耐压系列
      • 便携 场地交流耐压
      • 电缆故障诊断系列
    • 美国RIPLEY锐剥利工具
    • 美国Tekton工具
    • 美国ETS-lindgren场强仪
  • 亚洲进口产品
    • 台湾SEW仪器仪表
      • 钩表
      • 检相计
      • 三用电表
      • 其他仪表
      • 绝缘测试计
      • 数字回路检测计
      • 数字绝缘检测计
      • 漏电断路器检测计
      • 缆线追踪及局域网检测
      • 高电压检测
      • 接地电阻计
    • 日本YS绝缘产品
      • 绝缘裤
      • 绝缘袖套
      • 绝缘靴
      • 绝缘衣
      • 绝缘安全帽
      • 防电弧产品
      • 橡胶 聚乙烯绝缘管
      • 绝缘手套 防护手套
      • 橡胶绝缘毯 绝缘垫
      • 树脂绝缘毯 绝缘包毯
    • 日本IZUMI工具
      • 泉精器液压泵
      • 压力测试仪表
      • 泉精器液压切刀
      • 液压冲孔机 折弯机
      • 泉精器液压压接钳
      • 锂电池工具及其他
    • 日本FUJII DENKO产品
      • 立柱安全带
      • 林业安全带
      • 线路施工设备
      • 线束式安全带
      • 皮带式安全带
      • 防坠落救援装备
    • 日本长谷川检电仪器
      • 高压检电器
      • 铁路用检电器
      • 中低压检电器
      • 检相器及其他
      • 检电器检测仪
      • 活线近电报警器
    • 日本Ikura tools工具
      • 绞磨机
      • 放线架
      • 金属滑轮
      • 电缆牵引机
      • 角钢加工机
      • 钢筋弯管切割冲孔机
    • 梅思安个人安防产品
      • 梅思安消防装备
      • 梅思安设备仪表
      • 梅思安坠落防护
      • 梅思安呼吸防护
      • 梅思安头部防护
    • 代尔塔个人安防产品
      • 代尔塔坠落防护
      • 代尔塔身体防护
      • 代尔塔足部防护
      • 代尔塔手部防护
      • 代尔塔呼吸防护
      • 代尔塔眼部防护
    • 3M个人安防产品
      • 3M呼吸防护
      • 3M身体防护
      • 3M听力防护
      • 3M眼面部防护
    • 日本渡部工业安全产品
      • 绝缘手套 绝缘靴
      • 绝缘毯和防护具
      • 绝缘衣裤
    • 日本NGK工具
  • 欧美进口产品
    • 西班牙LIFASA产品
      • 低压附件
      • 低压电抗器
      • 低压电力电容器
      • 无功功率控制器
      • 低压电容器柜组
      • 高压冲击电抗器
      • 高压电力电容器
      • 高压电容器柜组
      • 高压无功控制器
      • 照明电容器
      • 电机电容器
      • 保护滤波器
      • 谐波滤波器
    • 德国金钟默勒低压工控产品
      • 空气断路器
      • 自动化产品
      • 塑壳断路器
      • MATS双电源开关
      • 驱动产品及其他
      • 主令和控制产品
      • 低压终端配电产品
      • 电动机起动和保护产品
    • 德国柯劳克工具
      • 手工具
      • 新一代产品
      • 压接和剪切工具
    • Metrel 美翠仪器仪表
      • 微欧计
      • 万用表
      • 综合测试仪
      • 电力分析仪
      • 电阻测试仪
    • 德国Novopress工具
      • 液压压接工具
      • 母线加工工具
      • 管道连接工具
    • 意大利intercable工具
      • intercable剥线工具
      • intercable液压工具
      • intercable手动工具
    • 英国Tinsley仪器
      • 电缆测试仪
      • 精密测量仪器
      • 便携测量仪器
    • 英国KARAM防护产品
      • Karam安全带
      • Karam坠落防护产品
    • 英国micronics流量计
    • 加拿大greyline流量计
  • 国产产品
    • 上海人民电器厂
      • 交流接触器
      • 小型断路器
      • 电动机软起动器
      • 高压真空断路器
      • 塑料外壳式断路器
      • 双电源自动转换开关
      • T系列热过载继电器
      • 剩余电流塑壳断路器
      • 智能型万能式断路器
    • 国产安全防护
      • 接地线
      • 放电棒
      • 绝缘毯
      • 操作杆
      • 绝缘靴
      • 绝缘手套
      • 拖线盘
      • 验电器
      • 其他电力安全工具
    • 自有品牌产品
      • 过电压在线监测仪
      • SHPB过电压保护器
    • 国产低压电器
    • 国产高压电器
    • 其他国产产品
  • 关于我们
  • 联系我们
  • 首页
  • 关于我们
  • 美国品牌产品
    • 美国KUDOS工具
      • 液压泵
      • 液压钳
      • 手动工具
      • 液压切刀
      • 液压钳头
      • 液压切刀头
      • 液压冲孔机
      • 钢管弯曲机
      • 液压电动工具
      • 液压螺母破碎机
      • 液压法兰扩张器
      • 钢筋切断机 弯曲机
    • 美国凯能五金工具
      • 拉缆夹
      • 螺丝刀
      • 电动工具
      • 绝缘工具
      • 钳类工具
      • 六角扳手
      • 扳手类工具
      • 工具包和配件
      • 钣金 锤凿工具
      • 个人防护与安全
      • 水平仪与测量工具
      • 导管 重工业工具
      • 断线钳 电缆剪
      • 电信 连接 工具套件
    • 美国salisbury安全工具
      • 救援钩棒
      • 电绝缘鞋、靴
      • 绝缘毯及附件
      • 绝缘手套和护袖
      • 防电弧面屏套件
      • 防电弧产品及套件
      • 电压探测器 验电器
      • 绝缘塑料套管和护罩
      • 头面部电弧防护产品
    • 美国hastings安全产品
      • 车载附件
      • 美国hastings绝缘操作杆及附件产品
      • 遮蔽罩 护罩
      • 测试仪器仪表
      • 护理和保养产品
      • 导体和人员支撑
      • 索具及起重设备
      • 接地和跳线设备
      • 绝缘操作杆和切刀
    • 美国霍尼韦尔安全产品
      • 呼吸防护系列
      • 听力防护系列
      • 坠落防护系列
      • 消防救援系列
      • 手部防护系列
      • 身体防护系列
      • 头部防护系列
      • 足部防护系列
      • 眼脸部防护系列
    • 美国HDE仪器仪表
      • 测试仪
      • 数显电压表
      • 无线核相仪
      • 非接触式验电器
      • 多功能数显电压表
      • 避雷器泄露电流测试仪
    • 美国高压电力仪器
      • 直流耐压系列
      • VLF低频耐压系列
      • 电缆故障诊断系列
      • 便携 场地交流耐压
      • 其它高压测试设备
    • 美国vanguard仪器
      • 断路器测试仪
      • 变压器测试仪
      • 电流互感器测试仪
      • 其他测试仪及附件
      • 多功能继电保护测试仪
    • 美国TSI测试仪器
      • 环境监测仪
      • 气溶胶类产品
      • 分析仪类产品
      • 流量测量系统
      • 通风测试仪器
      • Alnor仪器
      • 粒子计数器
      • Airflow仪器
    • 美国ETS-lindgren场强仪
    • 美国RIPLEY工具
  • 进口产品
    • 台湾SEW仪器仪表
      • 钩表
      • 检相计
      • 三用电表
      • 其他仪表
      • 绝缘测试计
      • 高电压检测
      • 接地电阻计
      • 数字绝缘检测计
      • 数字回路检测计
      • 漏电断路器检测计
      • 缆线追踪及局域网检测
    • 日本YS绝缘产品
      • 绝缘衣
      • 绝缘裤
      • 绝缘靴
      • 绝缘袖套
      • 绝缘安全帽
      • 防电弧产品
      • 绝缘手套 防护手套
      • 橡胶绝缘毯 绝缘垫
      • 橡胶 聚乙烯绝缘管
      • 树脂绝缘毯 绝缘包毯
    • 德国柯劳克工具
      • 手工具
      • 压接模
      • 加工工具
      • 新一代产品
      • 核电用产品
      • 压接和剪切工具
    • 德国金钟默勒产品
      • 驱动产品及其他
      • 自动化产品
      • 塑壳断路器
      • 空气断路器
      • 主令和控制产品
      • MATS双电源开关
      • 低压终端配电产品
      • 电动机起动和保护产品
    • Metrel美翠仪器仪表
      • 万用表
      • 微欧计
      • 电阻测试仪
      • 综合测试仪
      • 电力分析仪
    • 日本长谷川检电仪器
      • 高压检电器
      • 中低压检电器
      • 核相器及其他
      • 检电器检测仪
      • 铁路用检电器
      • 活线近电报警器
    • 西班牙LIFASA产品
      • 低压无功电能
        • 低压电力电容器
        • 低压电容器柜组
        • 无功功率控制器
        • 低压电抗器
        • 低压附件
      • 高压无功电能
        • 高压电力电容器
        • 高压电容器柜组
        • 高压无功控制器
        • 高压冲击电抗器
      • 照明和电机电容器
        • 照明电容器
        • 电机电容器
      • 有源滤波器
        • 保护滤波器
        • 谐波滤波器
      • 电力电子电容器
    • 日本IZUMI工具
      • 泉精器液压压接钳
      • 泉精器液压切刀
      • 泉精器液压泵
      • 压力测试仪表
      • 锂电池工具及其他
      • 液压冲孔机 折弯机
    • 日本Ikura tools工具
      • 绞磨机
      • 放线架
      • 金属滑轮
      • 角钢加工机
      • 电缆牵引机
      • 钢筋弯管切割冲孔机
    • 日本FUJII DENKO产品
      • 立柱安全带
      • 林业安全带
      • 线束式安全带
      • 皮带式安全带
      • 线路施工设备
      • 防坠落救援装备
    • 德国Novopress工具
      • 管道连接工具
      • 母线加工工具
      • 液压压接工具
    • 英国Tinsley仪器
      • 电缆测试仪
      • 精密测量仪器
      • 便携测量仪器
    • 其他进口产品
      • 日本NGK工具
      • 意大利intercable工具
        • intercable手动工具
        • intercable剥线工具
        • intercable液压工具
      • 英国KARAM防护产品
        • Karam安全带
        • Karam坠落防护产品
      • 加拿大greyline流量计
      • 英国micronics流量计
  • 国产产品
    • 国产低压电器
      • 按钮
      • 熔断器
      • 控制器
      • 变压器
      • 断路器
      • 变阻器
      • 信号灯
      • 互感器
      • 接触器
      • 电容器
      • 过电压保护器
      • 万能转换开关
      • 照明箱 配电箱
    • 国产低压电器
      • 电铃
      • 调压器
      • 稳压器
      • 避雷器
      • 起动器
      • 电度表
      • 继电器
      • 电磁铁
      • 隔离开关
      • 组合开关
      • 行程开关
      • 电流电压表
      • 电机保护器
    • 上海人民电器厂
      • 交流接触器
      • 小型断路器
      • 电动机软起动器
      • 高压真空断路器
      • T系列热过载继电器
      • 剩余电流塑壳断路器
      • 智能型万能式断路器
      • 双电源自动转换开关
    • 国产安全防护
      • 接地线
      • 绝缘毯
      • 操作杆
      • 验电器
      • 绝缘靴
      • 拖线盘
      • 放电棒
      • 绝缘手套
      • 其他电力安全工具
    • 国产高压电器
      • 高压避雷器
      • 真空断路器
      • 高压负荷开关
      • 高压隔离开关
    • 自有品牌产品
      • SHPB过电压保护器
      • 过电压在线监测仪
    • 其他国产产品
  • 样本下载
  • 联系我们
  • 网站首页
  • 关于我们
  • 产品列表
  • 联系我们
  • LIFASA电容器

RMWGL1系列隔离器

  1. 主页
  2. 国产产品
  3. 上海人民电器厂
  4. 智能型万能式断路器
  5. RMWGL1系列隔离器
RMWGL1系列隔离器2019-01-11T18:45:51+08:00
  • 产品简介

  • 产品简介

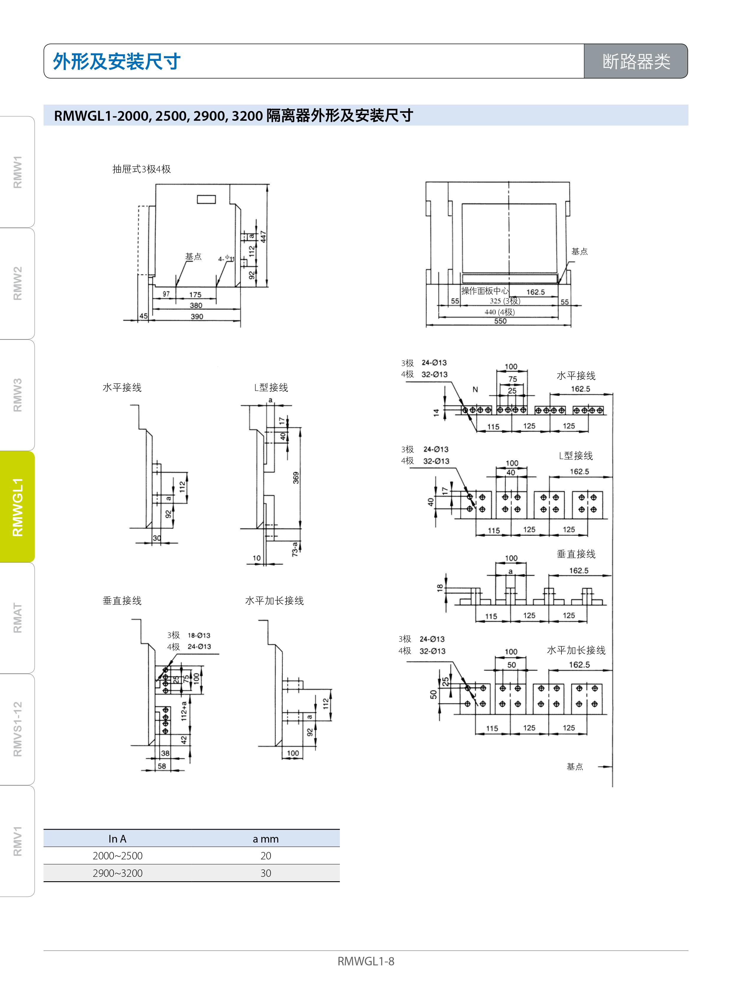
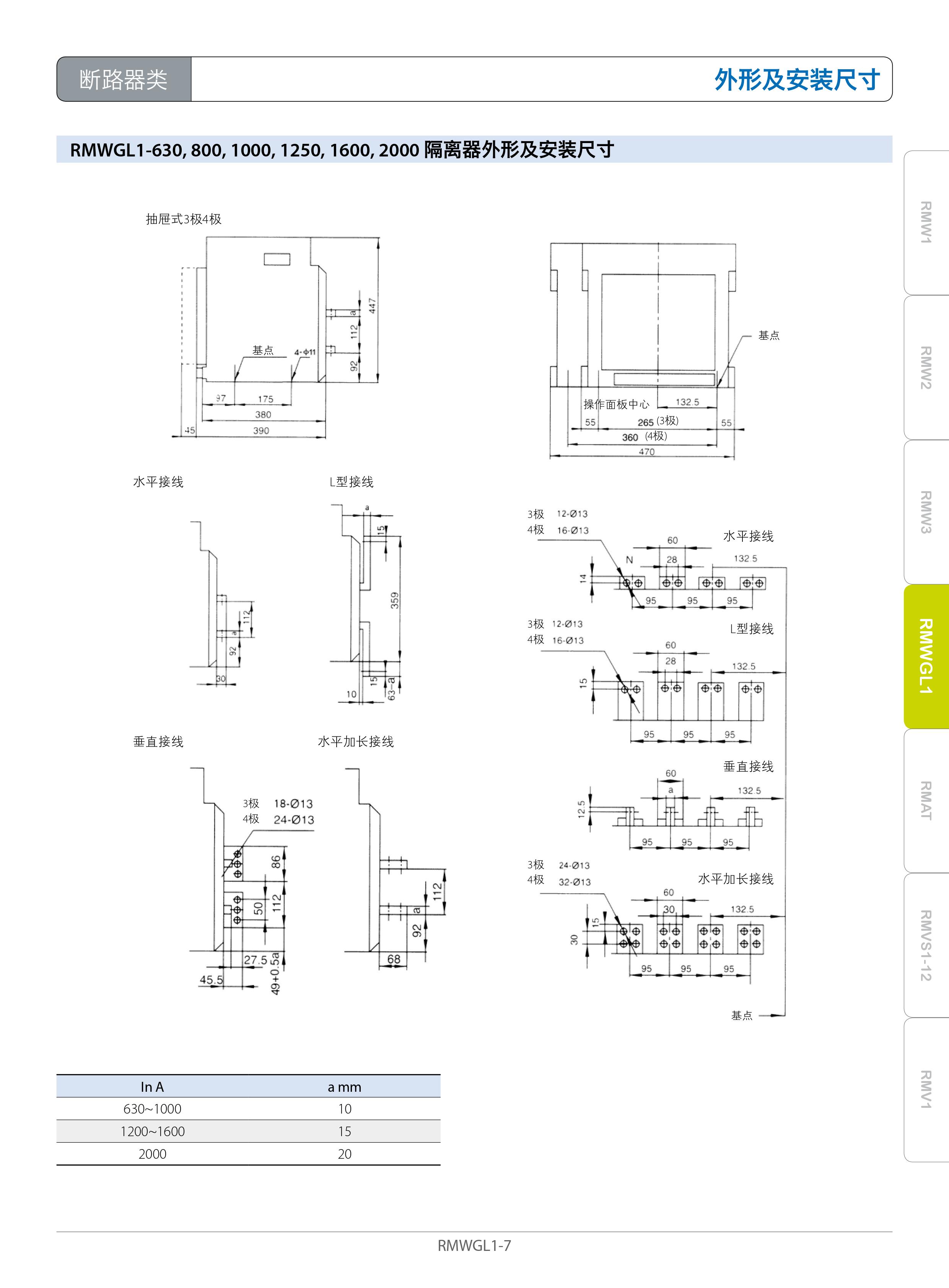
用途:

RMWGL1系列隔离器(以下简称隔离器)适用于交流50Hz,额定电压400V、690V,额定工作电流3200A及以下的配电网络中,用作线路与电源隔离,以确保检修人员安全地对线路中电气设备进行正常维护。

正常工作条件:

环境温度:-5~+40℃;且其24小时的平均值不超过+35℃

极限大气条件:大气相对湿度在周围空气温度为+40℃时,空气的相对湿度不超过50%,在较低温度下可以有较高的相对湿度,例如:20℃时达90%。对由于温度变化偶尔产生的凝露应采用特殊的措施。

污染等级:污染等级三级。

海拔高度:安装地点的海拔不超过2000m。

  • 结构图

  • 技术数据与性能

  • 附件及功能

  • 外形及安装尺寸

  • 订货格式

  • 结构图

  • 技术数据与性能

  • 附件及功能

  • 外形及安装尺寸

  • 订货格式

想分享本页内容?请选择分享平台→

相关项目

西门子5SY51107CC直流小型断路器 220V DC 10kA,1极,C,10A
西门子5SY51107CC直流小型断路器 220V DC 10kA,1极,C,10A
Gallery

西门子5SY51107CC直流小型断路器 220V DC 10kA,1极,C,10A

2 12 月, 2021
西门子5SY51167CC直流小型断路器 220V DC 10kA,1极,C,16A
西门子5SY51167CC直流小型断路器 220V DC 10kA,1极,C,16A
Gallery

西门子5SY51167CC直流小型断路器 220V DC 10kA,1极,C,16A

2 12 月, 2021
西门子5SY51637CC直流小型断路器 220V DC 10kA,1极,C,63A
西门子5SY51637CC直流小型断路器 220V DC 10kA,1极,C,63A
Gallery

西门子5SY51637CC直流小型断路器 220V DC 10kA,1极,C,63A

2 12 月, 2021
西门子5SY51407CC直流小型断路器 220V DC 10kA,1极,C,40A
西门子5SY51407CC直流小型断路器 220V DC 10kA,1极,C,40A
Gallery

西门子5SY51407CC直流小型断路器 220V DC 10kA,1极,C,40A

2 12 月, 2021
西门子5SY51507CC直流小型断路器 220V DC 10kA,1极,C,50A
西门子5SY51507CC直流小型断路器 220V DC 10kA,1极,C,50A
Gallery

西门子5SY51507CC直流小型断路器 220V DC 10kA,1极,C,50A

2 12 月, 2021
西门子5SY51207CC直流小型断路器 220V DC 10kA,1极,C,20A
西门子5SY51207CC直流小型断路器 220V DC 10kA,1极,C,20A
Gallery

西门子5SY51207CC直流小型断路器 220V DC 10kA,1极,C,20A

2 12 月, 2021
道路施工红白带 警戒带
道路施工红白带 警戒带
Gallery

道路施工红白带 警戒带

28 8 月, 2019
2059 250A绝缘跳线夹 引流线 3米
2059 250A绝缘跳线夹 引流线 3米
Gallery

2059 250A绝缘跳线夹 引流线 3米

9 7 月, 2019
4370 300A绝缘跳线夹 引流线 3米
4370 300A绝缘跳线夹 引流线 3米
Gallery

4370 300A绝缘跳线夹 引流线 3米

9 7 月, 2019
21060 300A绝缘跳线夹 引流线 3米
21060 300A绝缘跳线夹 引流线 3米
Gallery

21060 300A绝缘跳线夹 引流线 3米

9 7 月, 2019
21300 250A绝缘跳线夹 引流线 3米
21300 250A绝缘跳线夹 引流线 3米
Gallery

21300 250A绝缘跳线夹 引流线 3米

9 7 月, 2019
2757 400A绝缘跳线夹 引流线 3米
2757 400A绝缘跳线夹 引流线 3米
Gallery

2757 400A绝缘跳线夹 引流线 3米

9 7 月, 2019

现货:西班牙LIFASA FML4460电容器

西班牙LIFASA FML4460电容器

西班牙LIFASA FML4460电容器现货可供,支持一台起订。

分类目录

3M个人安防产品 (211) 3M呼吸防护 (110) Metrel 美翠仪器仪表 (82) 代尔塔个人安防产品 (106) 伊顿-德国金钟默勒 (118) 压接和剪切工具 (93) 台湾SEW仪器仪表 (229) 呼吸防护系列 (214) 国产产品 (628) 国产低压电器 (345) 国产安全防护 (140) 坠落防护系列 (148) 导体和人员支撑 (221) 工具包和配件 (156) 德国柯劳克工具 (111) 意大利Intercable工具 (139) 手部防护系列 (320) 扳手类工具 (128) 拉缆夹 (106) 接地和跳线设备 (187) 操作杆附件 (129) 断线钳 电缆剪 (87) 日本FUJII DENKO产品 (227) 日本Ikura tools工具 (81) 日本IZUMI工具 (72) 日本YS绝缘产品 (230) 日本长谷川检电仪器 (71) 水平仪与测量工具 (101) 索具及起重设备 (87) 绝缘手套和护袖 (71) 绝缘操作杆和切刀 (321) 美国hastings安全产品 (1183) 美国KUDOS工具 (255) 美国salisbury安全工具 (241) 美国TSI测试仪器 (161) 美国凯能五金工具 (1259) 美国霍尼韦尔安全产品 (1107) 美国高压HV电力仪器 (76) 英国KARAM防护产品 (75) 螺丝刀类工具 (301) 足部防护系列 (191) 身体防护系列 (88) 车载附件 (164) 进口产品中心 (6408) 钳类工具 (111)

云标签

Your browser doesn't support the HTML5 CANVAS tag.

  • 电绝缘
  • 绝缘
  • 液压
  • 充电式
  • 绝缘操作杆
  • 手套
  • 螺丝刀
  • 套件
  • 套装
  • 安全带
  • 安全鞋
  • 绝缘手套
  • 防静电
  • 防电弧
  • 重型
  • 分体式
  • 防刺穿
  • 拉缆夹
  • 测试仪
  • 保护足趾

标签导航

1.8米 (49) 3英寸 (50) 6英寸 (62) 7kV (50) 8英寸 (51) 17KV (54) 20KV/3min (54) Tripper (58) 便携式 (58) 保护足趾 (169) 充电式 (73) 分体式 (74) 剪枝锯 (47) 功能型 (55) 压接钳 (64) 多功能 (64) 套件 (84) 套装 (97) 安全带 (105) 安全鞋 (191) 干箱 (60) 手动 (58) 手套 (271) 拉缆夹 (78) 氯丁 (48) 油压压接器 (49) 测试仪 (76) 液压 (90) 液压切刀 (62) 液压压接钳 (49) 电动 (66) 电绝缘 (67) 白色 (55) 绝缘 (146) 绝缘手套 (109) 绝缘操作杆 (164) 绝缘毯 (51) 螺丝刀 (262) 重型 (103) 防刺穿 (71) 防割 (60) 防电弧 (87) 防静电 (121) 高压 (62) 黄色 (49)

友情链接

  • 上海山合海融商贸有限公司诚信通网站
  • 上海山合海融商贸有限公司旧版
  • 上海山合海融商贸旧版

点击图片返回首页

联系方式

上海市宝山区陆翔路678弄60号

手机: 13818244503

传真: 021-56889347

邮件: sh@shanhehairong.com

网站: www.shanhehairong.com

简洁分类

  • 进口产品
  • 国产产品
  • 关于我们
山合海融微博
山合海融微博
微信公众号shanhehairong
微信公众号shanhehairong
微信号sh51082245
微信号sh51082245

Copyright 2024 上海山合海融商贸有限公司 | All Rights Reserved。沪ICP备09041411号 | 沪公网安备 31011302004703号 | 企业注册登记信息 |
阿里旺旺沟通阿里旺旺沟通QQ交流QQ交流微信公众号:shanhehairong微信公众号:shanhehairong上海山合海融微博上海山合海融微博微信号:sh51082245微信号:sh51082245手机浏览直接拨打电话手机浏览直接拨打电话
Page load link
返回顶部