| 用途及使用范围: |
| CT19B CT19型弹簧操动机构可供操动ZN28系列分装式高压真空断路器及其合闸功与之相当的其它类型的真空断路器,本产品的机械寿命为10000次。 机构合闸弹簧的储能方式有电动机储能和手动储能两种;分闸操作有分闸电磁铁、过电流脱扣电磁铁及手动按钮操作三种;合闸操作有合闸电磁铁及手动按钮操作两种。 |
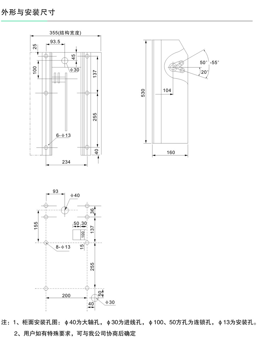
产品详细资料(注:产品资料来源于原生产厂家,仅供参考,如有疑问请与我们或者生产厂家核实确认,尤其是开孔尺寸与技术参数等重要参数,为了避免产品技术更新或升级有变动给您带来不必要的损失,谢谢配合!)

CT19B型弹簧操动机构


CT19型弹簧操动机构













