静态开关模块CTB2PH
该静态开关模块CTB2PH包括,在一个紧凑的尺寸中,所有必要的部件实现的三相电容器的切换。CTB2PH模块使用晶闸管代替机电接触器。在负载电流大而快速波动的情况下(负载变化持续几毫秒到几秒),静态系统是很方便的。
静态系统的优点是过零电压时的连接和零电流交叉时的断开,从而避免了浪涌电流瞬变。CTB2PH模块由两个基本部分组成:控制模块和电源块。作为附加配件,两个部件都可以安装聚碳酸酯盖。
Static Switching Module CTB2PH
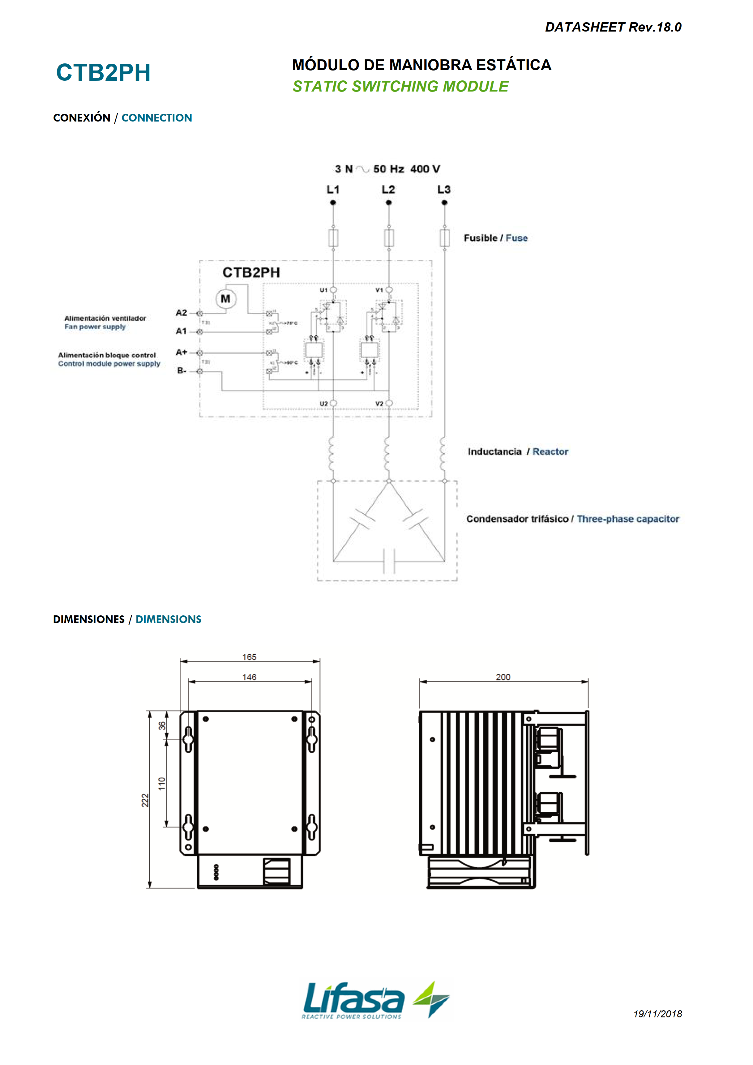
The static switching module CTB2PH includes, in a compact size, all the components necessary to realize the switching of three-phase capacitors. CTB2PH modules use thyristors instead of electromechanical contactors. The static system is the most convenient in case of large and fast fluctuations of the load current (load changes lasting a few milliseconds to several seconds).
The advantages of the static system are the connection at zero crossing voltage and the disconnection at zero current crossing, thus avoiding inrush current transients. CTB2PH modules are composed of two basic parts: control module and power block. As an added accessory, both parts can be mounted with a polycarbonate cover.
| 电压 | 230 V – 400 V. |
| 开关电源 | 12,5 kvar – 80 kvar |
| 当前 | 36 A,72 A,115 A |
| 频率 | 50/60赫兹 |
| 控制模块供电 | 12 Vcc |
| 通风 | 风扇 |
| 保护控制模块 | 通过恒温器NC。最高90C |
| 风扇保护 | 恒温控制。联系NO70C |
| 安装 | 垂直水平 |
| 切换阶段 | L1,L2(L3直通) |
| 保护等级 | IP00 |
| 附件 | 聚碳酸酯盖。零件号(COVERCTB2PH) |
| Voltage | 230 V – 400 V |
| Switching Power | 12,5 kvar –80 kvar |
| Current | 36 A, 72 A, 115 A |
| Frequency | 50/ 60 Hz |
| Control module power suply | 12 Vcc |
| Ventilation | Fan convention |
| Protection control module | By means of thermostat NC. Max. 90 C |
| Fan protection | Thermostat control. Contact NO 70 C |
| Mounting | Vertical-Horizontal |
| Switched phases | L1,L2 (L3 connected straight through) |
| Protection degree | IP00 |
| Accessory | Polycarbonate cover. part number (COVERCTB2PH) |
| Part Number | Un (V) | Qn (kvar) | Dimensions (mm) | Weight(Kg) |
| CTB2PH4025 | 230/400 | 12,5/25 | 222x165x200 | 4,5 |
| CTB2PH4050 | 230/400 | 25/50 | 222x165x200 | 4,5 |
| CTB2PH4080 | 230/400 | 40/80 | 222x165x200 | 5,5 |
| COVERCTB2PH |




















